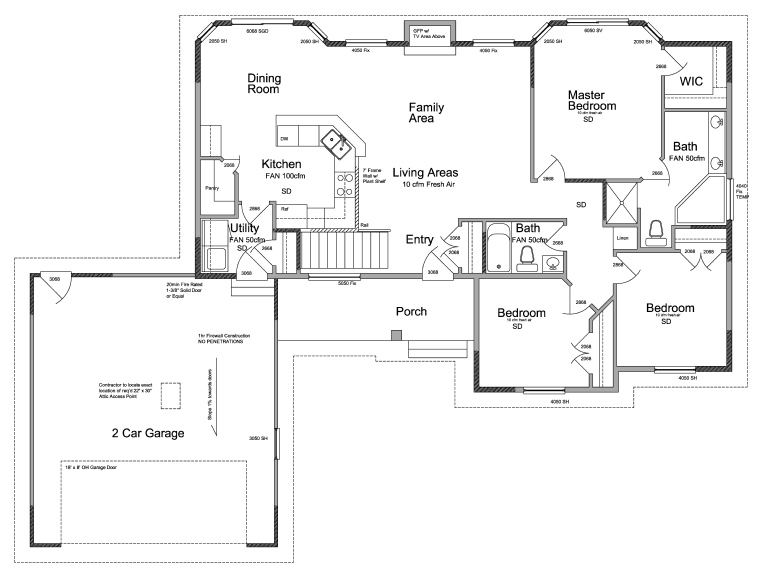
The Wamsutter

Click to enlarge

Click to enlarge
Home | Houseplans | For Sale | Custom Homes | Gallery | Contact | Media
Copyright © Stonebrook Construction LLC